一個好的餐飲空間設計,可以為企業帶來源源不斷的客流量,而一個差的餐廳設計,浪費投資者錢,還會給后面的餐廳運作帶來很多不必要的麻煩。
品深餐飲設計認為:優秀的餐飲空間設計師絕不是天馬行空的藝術家,而是始終圍繞餐飲運營,投資預算而展開的系統商業策劃師。餐飲空間形象設計的要求主要體現在兩個方面:
第一是
空間如何體現品牌的核心內涵,即餐廳的藝術性設計,這是區別于其他餐飲品牌最核心的特征。不同餐飲品類,不同的餐飲形式,以及不同的品牌定位決定了餐廳的空間設計風格。

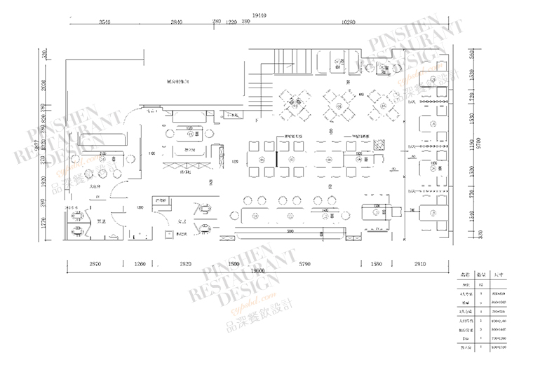
不少的餐飲老板習慣認為:幫我把位置排列一下,看看能布多少張桌子。這其實是非常不認真,不科學的做法。餐廳的平面布局圖,應該嚴格根據餐飲品類,人群的劃分,對兩人位,四人位,六人位,包間,圓桌進行測算,并劃分餐廳的主動線,廚房的大小等等,需要非常嚴謹和細致的規劃。
因此,品深餐飲設計在餐飲空間設計的流程中要求老板:
必須是在品牌形象設計完成之后,啟動餐廳的平面布局。

確定了平面布局之后,再進行效果圖的作業,也就是將餐廳的地面,頂飾,墻面,隔斷,進行藝術化設計,圍繞品牌主題,形成系統的形象體系和商業美學。最終用詳細的施工圖將此效果完美表現出來,經過嚴密的施工,效果完美落地。
第二,除了餐廳的特色風格,我們還應該重點關注其餐廳的功能性設計:比如空間布局的尺度,提升運營效率;裝修材料的簡單易采購,便于餐飲的規?;瘡椭?;門頭設計的標準化,品牌形象統一性等。
餐飲品牌空間設計指的就是室內設計,主要內容有企業店鋪主題風格設計、品牌文化形象的植入和進行文化嫁接、餐廳店面的功能設計、室內裝修的用材講究和標準,軟裝搭配等。貼合品牌形象,在進行餐飲空間設計時一定要注重品牌文化和形象的植入與嫁接,打造有辨識度的品牌。將品牌形象通過立體空間表現出來,就是餐廳的空間設計。
在餐飲全案策劃設計中,餐飲空間設計是最為重要的落地環節,品深餐飲將空間設計定義為消費者感受品牌,享受美味及服務的體驗之地。他與整個品牌設計一脈相承,息息相關,是品牌形象的立體化表達。整個空間設計中任何一個圖形的使用,照明燈具的款項,家具的款項顏色,都是從品牌整個形象規劃中得來,與品牌整體完整統一,這也是真正餐飲品牌空間設計的靈魂所在。
發布時間:2020-08-04 09:52:24 展現量:1564萬
來源:品深設計 聲明:本文來自于品深餐飲設計團隊,未經許可不得轉載,轉載請注明本文鏈接